VILLA MEUCCI: ZONA LIVING DI 52 MQ, 4 CAMERE + STUDIO AL PIANO TERRA!
VIGODARZERE IN COSTRUZIONE Riferimento OCM43: VILLA MEUCCI grandi spazi, difficili…
Trattativa riservata
Via Giuseppe Verdi, Vigodarzere, Padova, Veneto, 35010, Italia
Vendita
€265.000













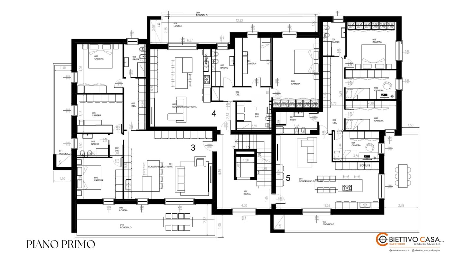
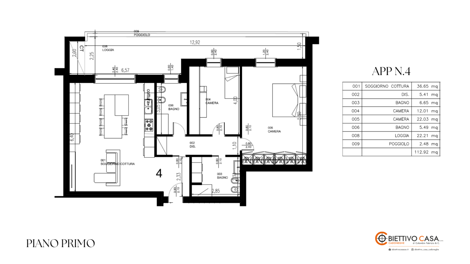
VIGODARZERE RIF: SCA04. Questo grande bicamere si trova al primo piano di una palazzina moderna dotata di ascensore, offrendo una vista libera sul verde circostante che rende ogni giorno speciale. L’ingresso conduce ad un luminoso soggiorno angolo cottura di ben 37 mq, caratterizzato da una grande vetrata scorrevole che porta direttamente al terrazzo coperto di 25 mq – perfetto per pranzi all’aperto o momenti di relax.
La zona notte è composta da due camere dalle dimensioni generose: una camera singola (11.65 mq) ed una matrimoniale (19.75 mq), ideali per garantire comfort e privacy. Due bagni, uno cieco ed uno finestrato con angolo lavanderia dedicato, spazioso oltre i 7 mq.
Al piano terra troverai anche un garage privato di 18 mq e un posto auto riservato.
L’appartamento è costruito secondo gli elevati standard energetici della classe A4; già attrezzato con aria condizionata e impianto VMC installati, offre inoltre libertà energetica grazie ai suoi pannelli fotovoltaici autonomi da 3 kW. La predisposizione per l’allarme aggiunge ulteriore sicurezza alla tua nuova casa.
Vigodarzere non solo ti regala tranquillità ma anche accesso a ottimi servizi locali come scuole, negozi e aree verdi ideali per passeggiate nel tempo libero. La posizione strategica permette facili collegamenti con Padova e altre località limitrofe rendendola ideale sia per famiglie che professionisti.
Non lasciarti sfuggire questa opportunità unica! Contattaci subito al numero +39 3755071185 oppure invia una mail a valentina@obiettivocasasas.it per ulteriori informazioni sul nostro RIF SCA04 proposto ad Euro 265.000,00 (APE prevista Classe A4).
Se stai pensando di vendere casa prima dell’acquisto, siamo disponibili a valutare gratuitamente il tuo immobile fornendo consulenze personalizzate in marketing immobiliare.
Per rimanere aggiornati sulle novità immobiliari nella zona seguici su FACEBOOK: Obiettivo Casa Sas di Colombin Fabrizio.
VIGODARZERE IN COSTRUZIONE Riferimento OCM43: VILLA MEUCCI grandi spazi, difficili…
Trattativa riservata
VIGODARZERE, RIF: V01. Scoprite un esclusivo progetto residenziale: 5Domus composto…
€275.000
Residenza Aida: VISTA LIBERA, TERRAZZO DI 25MQ + STANZA JOLLY
Owning a home is a keystone of wealth… both financial affluence and emotional security.
Suze Orman