RESIDENZA ANTENORE: APPARTAMENTO CON MANSARDA AL TERZO E QUARTO PIANO
ALBIGNASEGO, MANDRIOLA, Riferimento OCAM17: in costruzione grande appartamento sviluppato su…
Trattativa riservata
Via Giuseppe Verdi, Vigodarzere, Padova, Veneto, 35010, Italia
Vendita
€265.000













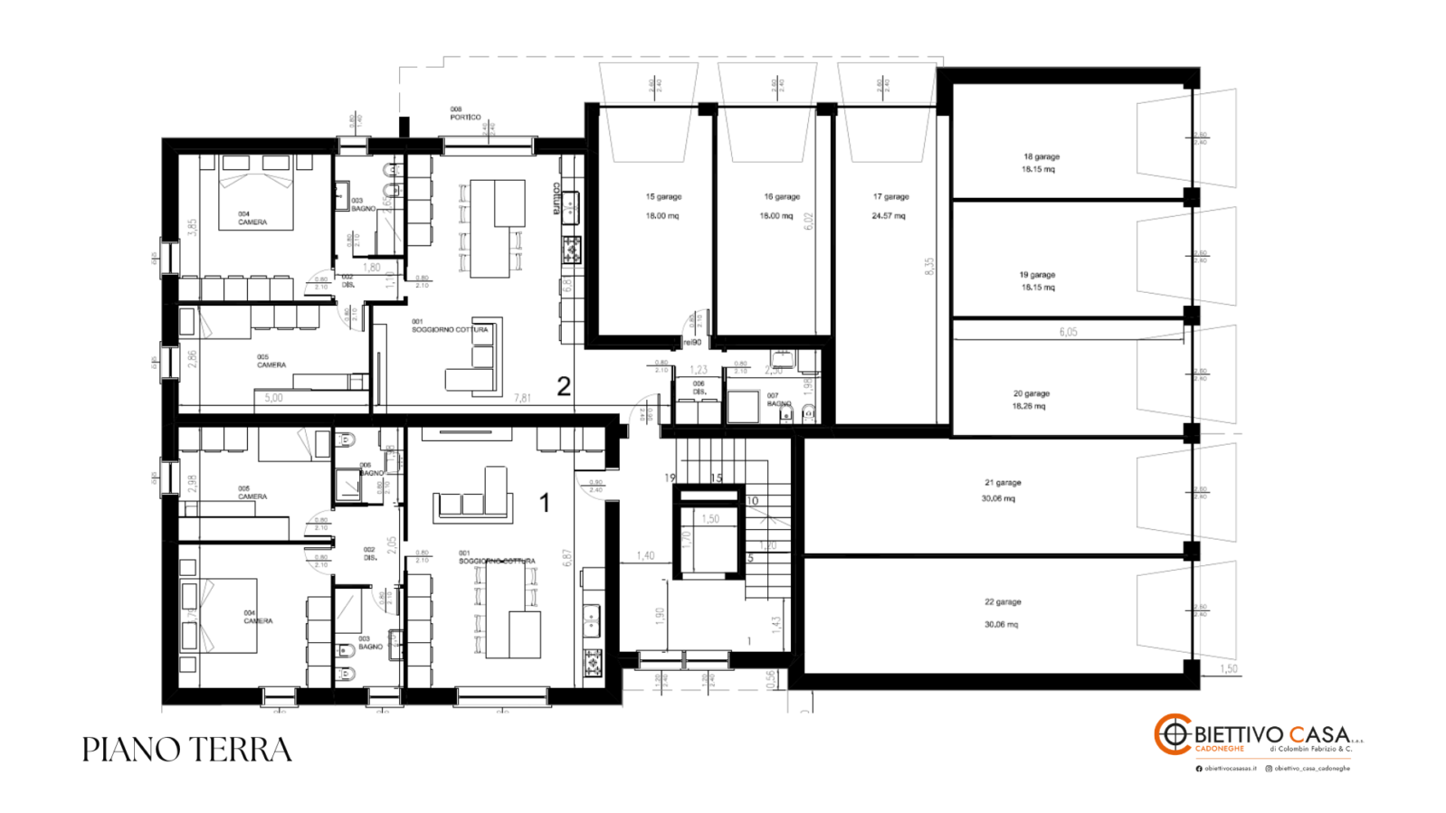
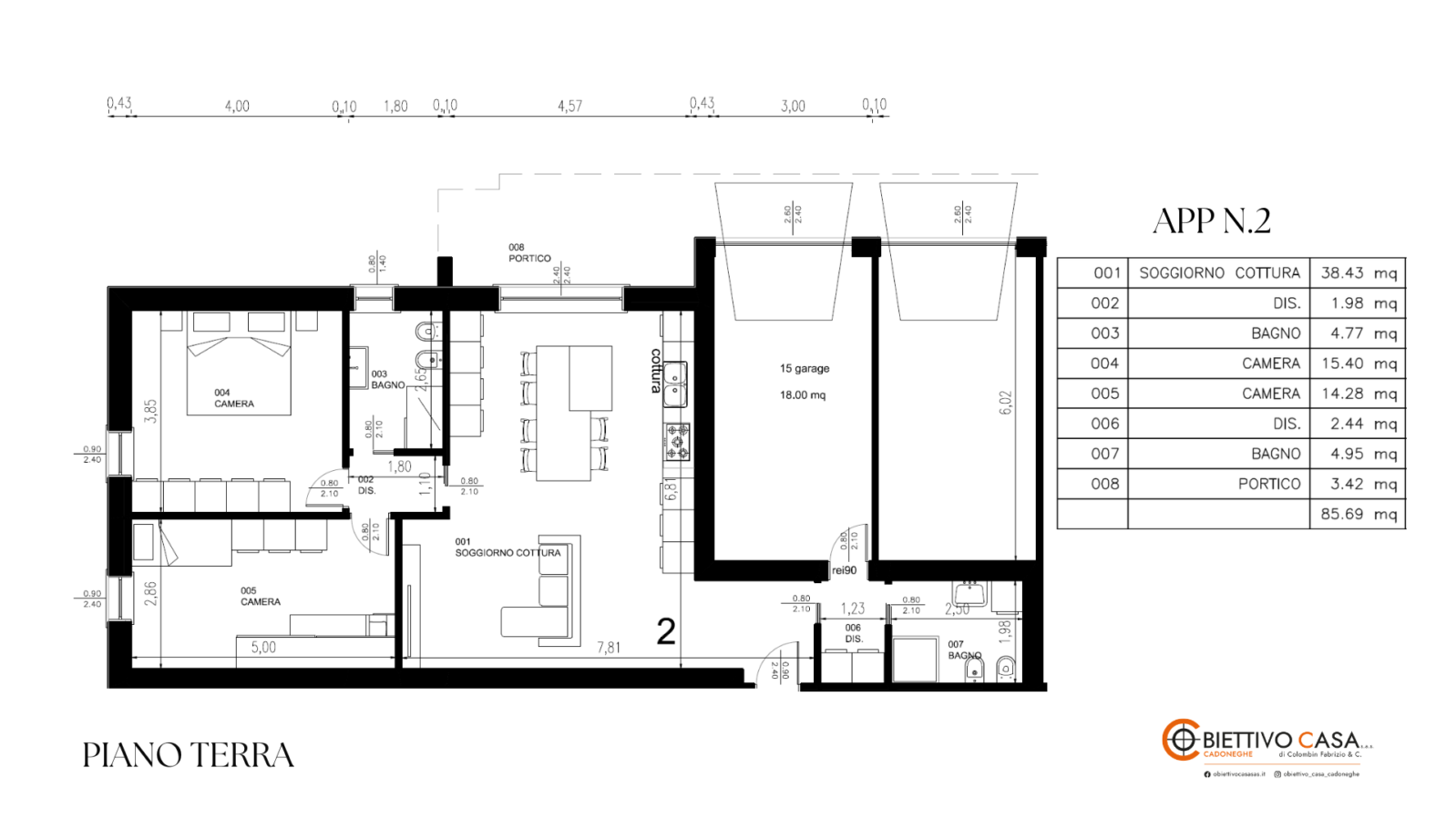
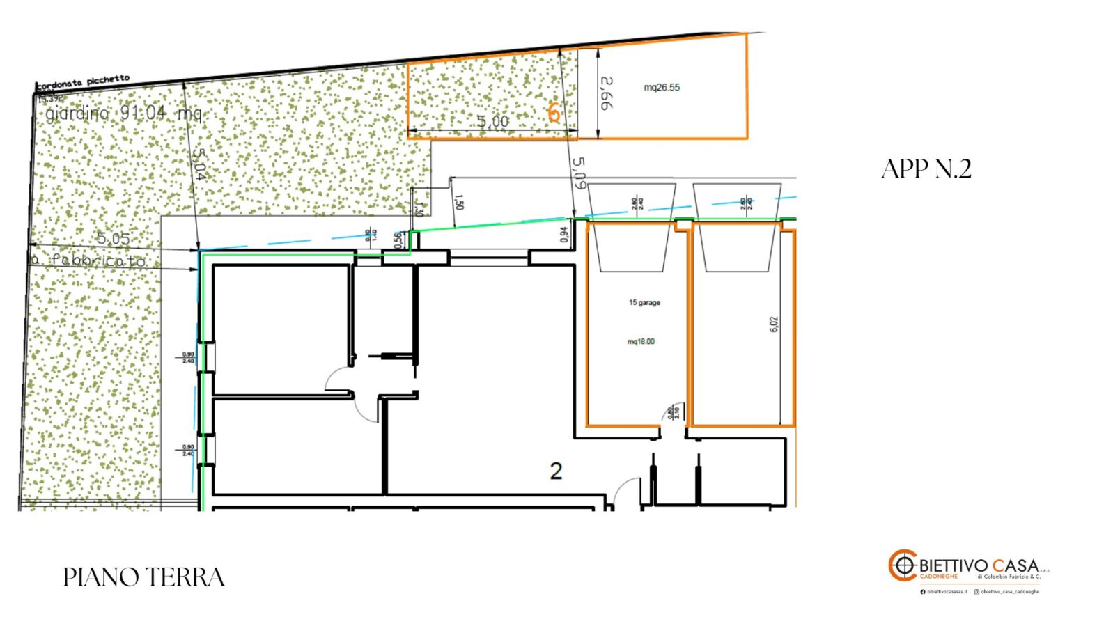
VIGODARZERE RIF SCA02: generoso bicamere in Residenza Aida, progettato per offrire comfort e modernità.
L’appartamento vanta una spaziosa zona giorno di ben 38 mq, caratterizzata da un alzante scorrevole che si affaccia su un giardino privato di 80 mq: lo spazio ideale per momenti di relax o pranzi/cene all’aperto con amici e familiari.
Le 2 camere matrimoniali offrono ampio spazio personale, mentre i due bagni e l’antibagno come zona lavanderia garantiscono la massima comodità nella gestione della casa.
Il garage è collegato internamente all’abitazione oltre ad avere anche un posto auto riservato.
Questo immobile è realizzato secondo gli standard energetici della classe A4; dotato già dell’aria condizionata e impianto VMC installati, ti offre inoltre la libertà energetica grazie ai suoi 3 kW di fotovoltaico autonomo. La predisposizione per l’allarme assicura ulteriore sicurezza alla tua nuova casa.
Vigodarzere è conosciuta per il suo ambiente familiare ed accogliente, con ottimi servizi locali tra cui scuole, negozi e aree verdi perfette per passeggiate nel tempo libero. La posizione strategica permette facili collegamenti con Padova e altre località circostanti.
Non perdere questa opportunità unica! Contattaci subito al numero +39 3755071185 oppure invia una mail a valentina@obiettivocasasas.it per ulteriori informazioni sul nostro RIF. SCA02 ad Euro 265.000,00 (APE prevista Classe A4).
Se stai pensando di vendere casa prima dell’acquisto, siamo disponibili a valutare gratuitamente il tuo immobile fornendo anche consulenze personalizzate in marketing immobiliare.
Per rimanere aggiornati sulle novità immobiliari nella zona seguici su FACEBOOK: Obiettivo Casa Sas di Colombin Fabrizio.
ALBIGNASEGO, MANDRIOLA, Riferimento OCAM17: in costruzione grande appartamento sviluppato su…
Trattativa riservata
CADONEGHE MEJANIGA/ISOLA DI TORRE, RIF. OCRA01: proponiamo in vendita un…
Trattativa riservata
Residenza Aida: TRICAMERE CON TERRAZZO DI 30MQ E AMPI SPAZI
Owning a home is a keystone of wealth… both financial affluence and emotional security.
Suze Orman